3 rooms - RESIDENCE BALCON DES CHAMPS
Arêches 43 m²Presentation
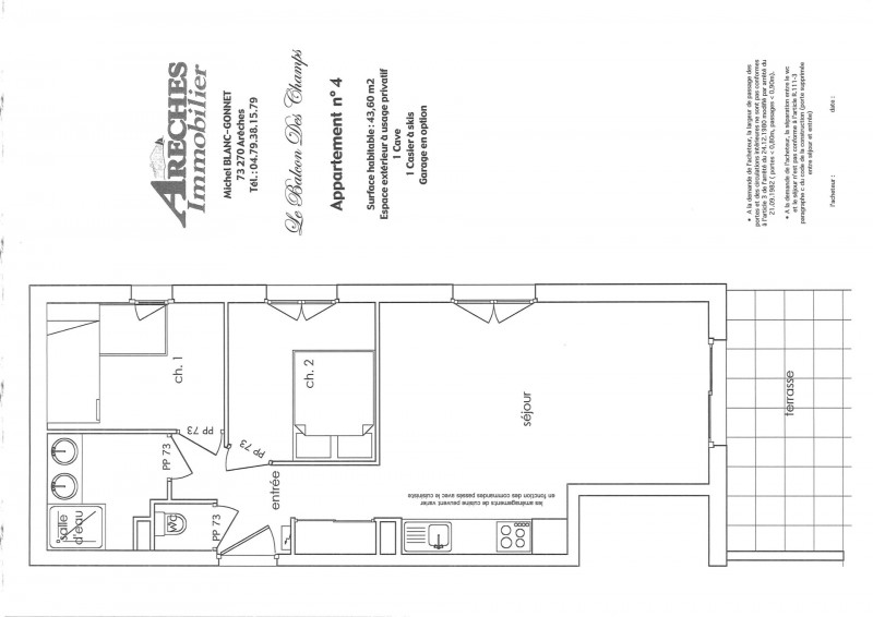
On level 1 RDJ, 3 room apartment facing South-East of 43 m²:
- Entrance
- Kitchen / Living room with sofa bed
- Bedroom 1 : 1 bed 140 (comforter)
- Room 2 : 1 bed 90x2 bunk + 1 bed 90 gigone
- Water room
- WC
- Terrace / small garden
- Private ski locker
- Wifi connection
Possibility of renting bed linen and towels, not included in the rental price.
- Entrance
- Kitchen / Living room with sofa bed
- Bedroom 1 : 1 bed 140 (comforter)
- Room 2 : 1 bed 90x2 bunk + 1 bed 90 gigone
- Water room
- WC
- Terrace / small garden
- Private ski locker
- Wifi connection
Possibility of renting bed linen and towels, not included in the rental price.
At a glance
- Housing type :
- Apartment
- Quartier :
- Arêches
- capacity :
- 43 m²
- Nombre de chambre(s) :
- 2 chambres
Detailed description
- Layout :
- Private balcony
Equipments & Services
- Multimedia :
- Television
- Kitchen appliances :
- Private washing machine
- Communal washing machine
- Dishwasher
- Microwave
- Storage for specific use :
- Ski locker
Availability
Destination
Les Champs
Les Carroz d'en bas
73270
ARÊCHES
GPS coordinates
Latitude : 45.688156
Longitude : 6.562032





















