2 rooms - RESIDENCE VAL BLANC II
Presentation
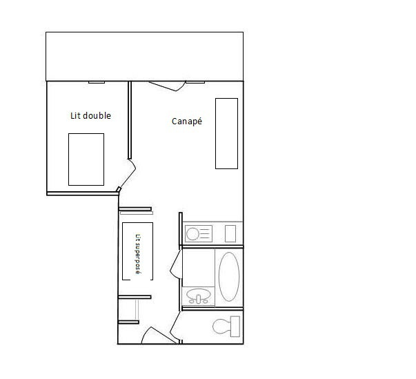
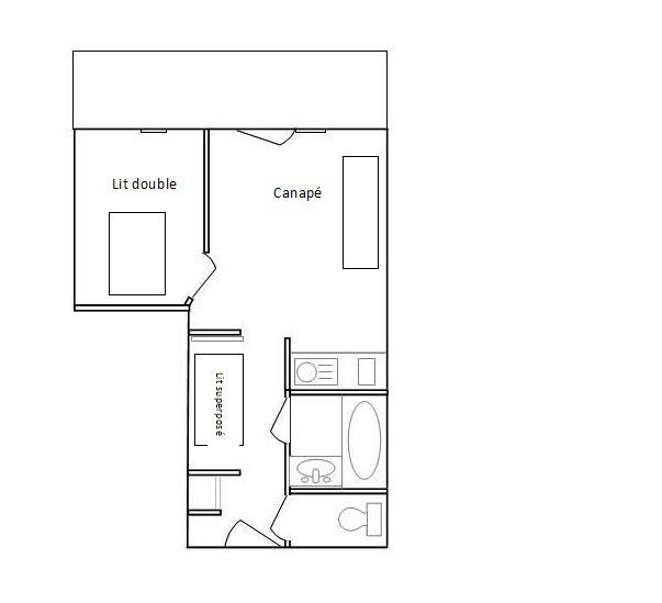
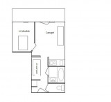
On level 2, 2 room apartment and mountain corner south facing, of 24m² :
- Entrance / mountain corner : 1 bed 90x2 (blankets)
- Living room / kitchen
- Bedroom : 1 bed 140 (blanket)
- Bathroom
- WC
- Balcony
- Private ski locker
Possibility of renting bed linen and towels, not included in the rental price.
- Entrance / mountain corner : 1 bed 90x2 (blankets)
- Living room / kitchen
- Bedroom : 1 bed 140 (blanket)
- Bathroom
- WC
- Balcony
- Private ski locker
Possibility of renting bed linen and towels, not included in the rental price.
At a glance
- Housing type :
- Apartment
- Quartier :
- Arêches
- capacity :
- 24 m²
- Nombre de chambre(s) :
- 1 chambre
Detailed description
- Layout :
- Private balcony
Equipments & Services
- Indoor facilities :
- Lift
- Multimedia :
- Television
- Kitchen appliances :
- Oven
- Dishwasher
- Microwave
- Storage for specific use :
- Ski locker
Availability
Destination
69 route de Monteiller
73270
ARÊCHES
GPS coordinates
Latitude : 45.687045
Longitude : 6.565667




















