2 rooms - RESIDENCE MONTANA
Presentation
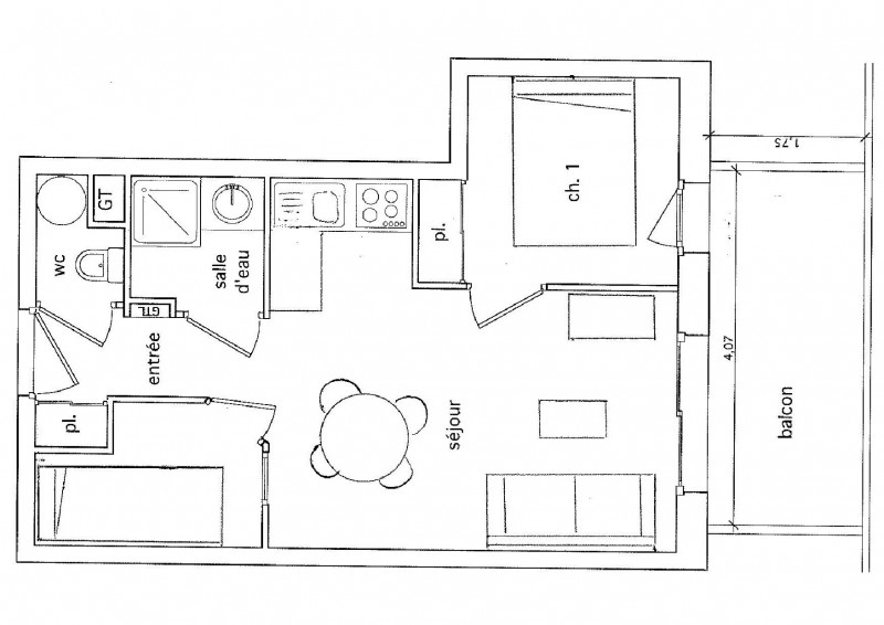
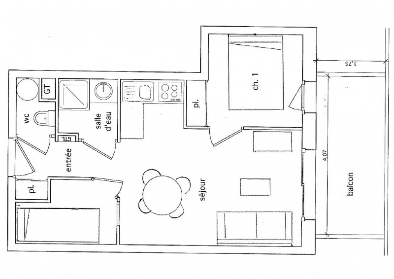
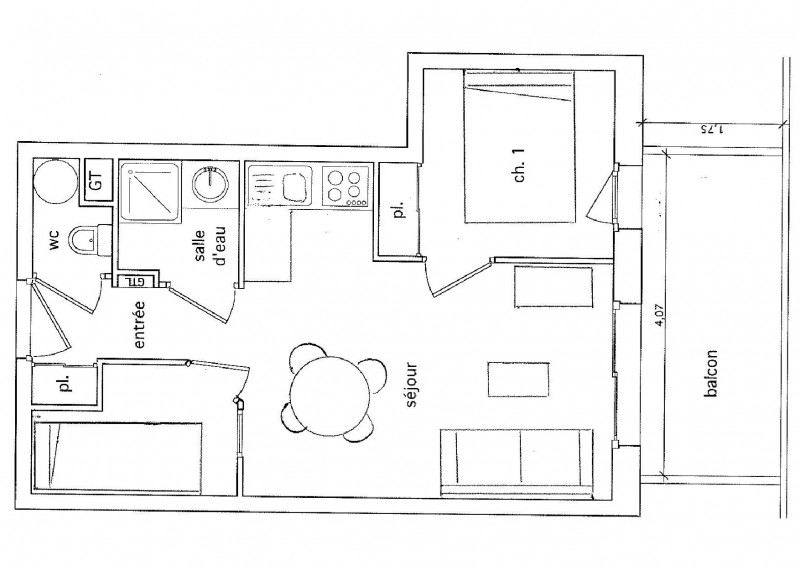
On level 2, 2 room apartment and closed mountain area facing South East, of 32m²:
- Entrance
- Living room / kitchen
- Bedroom 1 : 1 bed 140 (comforters + blankets)
- Mountain corner : 1 bed 90x2 (comforters + blankets)
- Shower room
- WC
- Balcony
- Private ski locker
- Cellar with bicycle storage
Possibility of renting bed linen and towels, not included in the rental price.
- Entrance
- Living room / kitchen
- Bedroom 1 : 1 bed 140 (comforters + blankets)
- Mountain corner : 1 bed 90x2 (comforters + blankets)
- Shower room
- WC
- Balcony
- Private ski locker
- Cellar with bicycle storage
Possibility of renting bed linen and towels, not included in the rental price.
At a glance
- Housing type :
- Apartment
- capacity :
- 2 room(s)
- 32 m²
- Nombre de chambre(s) :
- 1 chambre
Detailed description
- Layout :
- Private balcony
- Chambre 1 :
- 1 lit(s) double 140cm
Equipments & Services
- Indoor facilities :
- Lift
- Multimedia :
- Television
- Kitchen appliances :
- Oven
- Dishwasher
- Microwave
- Storage for specific use :
- Ski locker
Availability
Destination
Route des Carroz
73270
ARÊCHES
GPS coordinates
Latitude : 45.687342
Longitude : 6.563385


















